Description
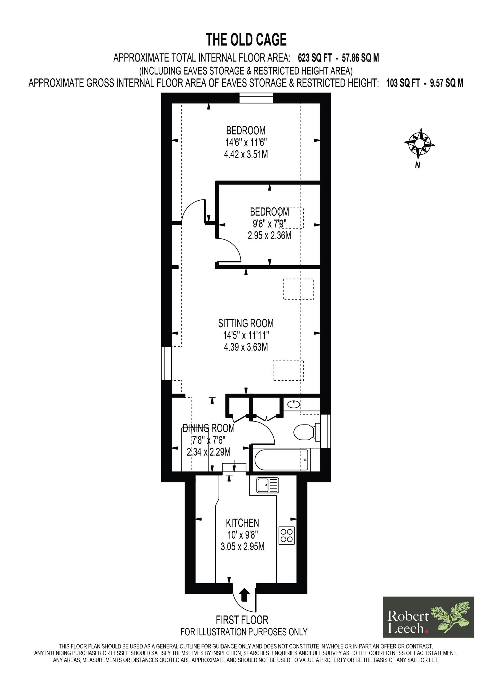
A well proportioned first floor apartment recently refurbished and in fantastic condition throughout. This grade 2 listed property boasts a spacious two double bedrooms, open plan living accommodation, family bathroom and allocated parking space, it even comes with a outside terrace area.
Approached via a spiral staircase which leads to a communal decked area for both apartments. Stepping inside, the refitted kitchen with extensive storage has integrated double oven and electric induction hob. A spacious hallway allowing access to both the bathroom and lounge, currently being utilised as a breakfast area. There is a generous sitting room with two skylights allowing plenty of light to give a spacious feel to the room.
There are two good sized double bedrooms with beamed ceilings and walls. The refitted bathroom comprises of white suite with shower over bath and tiled walls, with self contained storage for fitted washer/dryer. Stepping back outside, there is a private terrace area and allocated parking space.
LOCATION The property is situated within the heart of the Historic village of Lingfield which is centered around its picturesque pond. There are a good variety of local shops, restaurants, and village pubs. Lingfield all weather race course is very popular and hosts a number of events, and there are excellent local walks.
SCHOOLS There are two local primary schools that at present are rated good by Ofsted. Lingfield primary school is 0.3 miles away whilst Dormansland Primary school is 1.9 miles distant. There are several secondary schools within 5 miles of the property, all bar one of which are rated either good or outstanding by Ofsted. Imberhorne Secondary school is the closest state school and is rated outstanding.
TRAVEL For the commuter Lingfield mainline rail station is half a mile away and travels to both London Victoria and London Bridge. The national motorway network can be accessed at J6 of the M25 motorway which is approximately 7 miles away and for international travel Gatwick airport is just under 10 miles distant.
Additional Details
- :
Features
- Central Lingfield
- Open plan living
- Private Outside Terrace
- Two bedroom apartment
- Well Presented
Property on Map
Mortgage Calculator
- Principle and Interest








