Description
This beautifully presented and thoughtfully updated home offers generous and versatile accommodation arranged over three floors, finished to a very high standard with a stylish contemporary feel throughout.
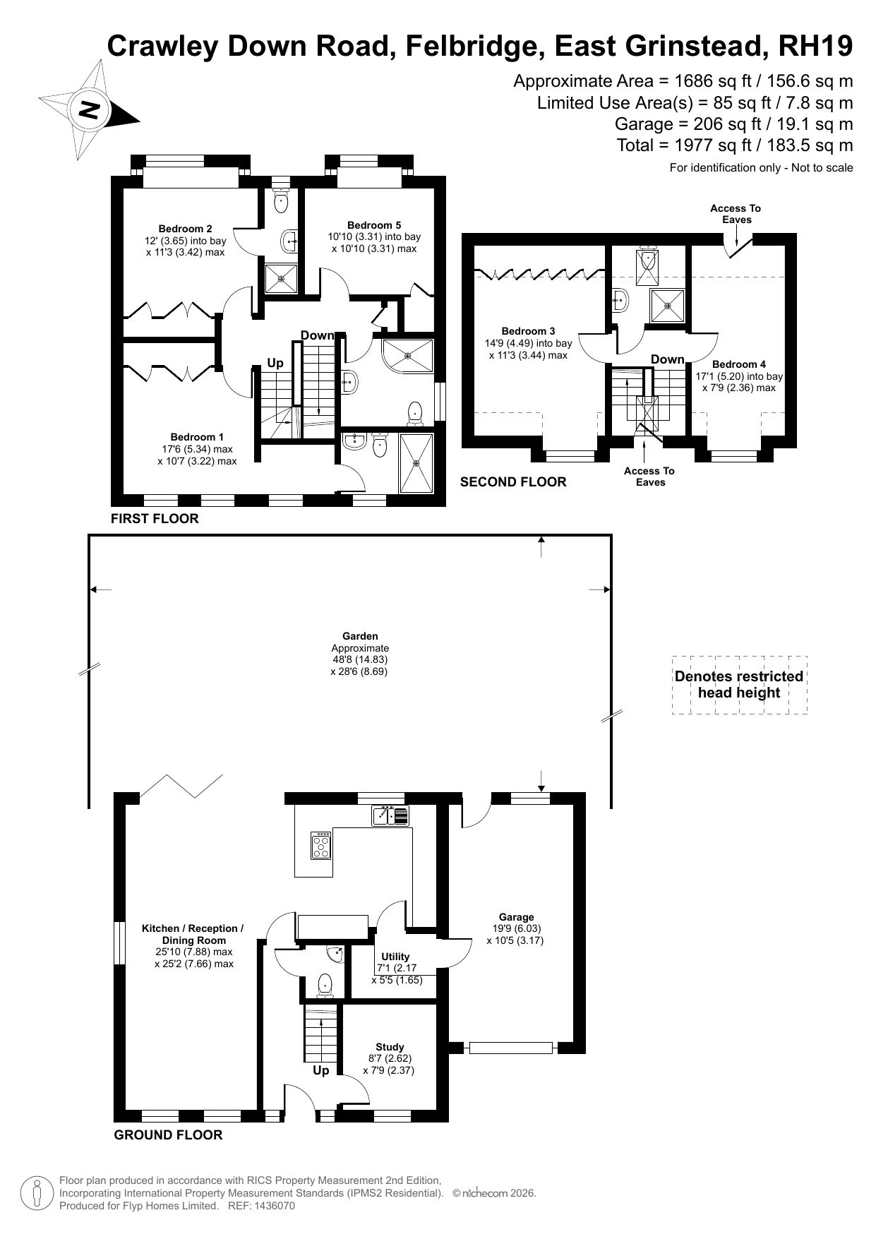
The ground floor is centred around an impressive open-plan kitchen/reception/dining room, creating a superb space for both everyday living and entertaining. The kitchen is well-appointed with modern fittings and flows seamlessly into the dining and living areas, with direct access to the garden allowing for an abundance of natural light. A separate study provides an ideal work-from-home space, complemented by a useful utility room and cloakroom. The integral garage offers excellent storage or further potential, alongside off-street parking to the front.
On the first floor, there are three well-proportioned bedrooms, including a spacious principal bedroom, all served by modern bathroom facilities. The second floor adds further flexibility with two additional bedrooms, ideal for guests, older children or further workspace, along with access to useful eaves storage.
Externally, the property enjoys a private southerly facing garden, providing a wonderful setting for outdoor dining and relaxation, with ample space for families and keen gardeners alike.
The location is particularly appealing, positioned within easy reach of East Grinstead town centre, which offers a wide range of shops, cafés, restaurants and leisure facilities. The area is well regarded for its excellent schooling options, including a selection of highly rated primary and secondary schools in both the state and independent sectors. For commuters, East Grinstead mainline station provides direct services to London, while the surrounding road network offers convenient access to Gatwick Airport, the M23 and beyond. The nearby countryside, including Ashdown Forest, offers beautiful walks and outdoor pursuits, making this an ideal setting for both families and professionals alike.
Additional Details
- :
Property on Map
Mortgage Calculator
- Principle and Interest






















