Description
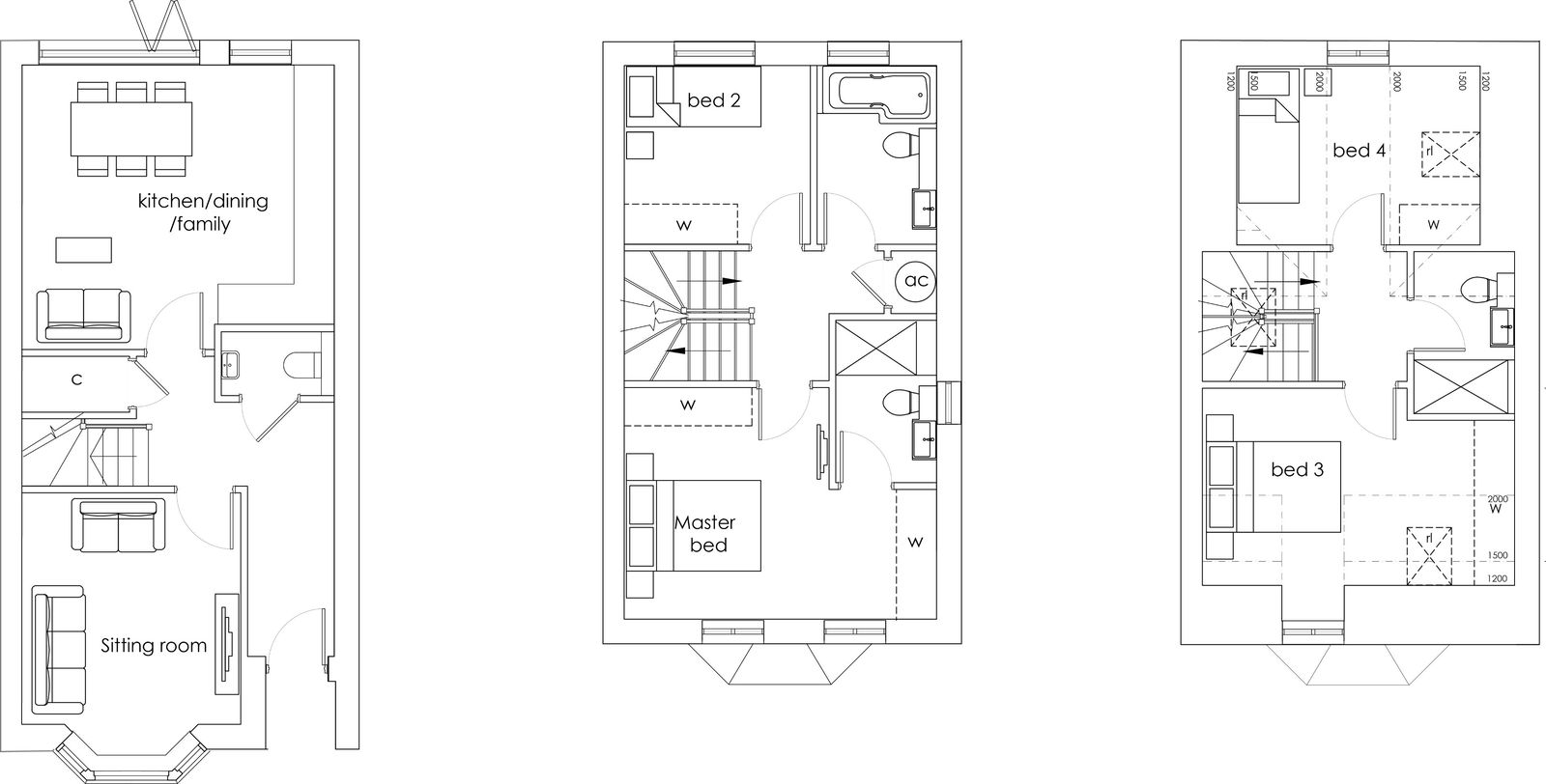
This fabulous new build property, built by a well regarded local developer, boasts four bedrooms, three bathrooms (one en-suite), separate sitting room, kitchen / diner, and downstairs WC. The kitchen/ diner opens onto a west facing garden that features both a patio and lawned area. The property benefits from off road parking with ev charger and an air source heat pump. Air conditioning is an added luxury.
Ranelagh Road is a pleasant road within easy reach of both Reigate and Redhill town centres. The location is largely residential however also boasts a popular deli and is walking distance to amenities including The Hatch pub as well as a post office and local shops, with many local schools also nearby. Redhill station is less than a 15 minute walk, and provides direct access to the London terminals in around 30 minutes. Reigate high street is just a 30 minute walk, with its many shops and restaurants.
Please note that the photos are of Plot 1, which is a mirror image internally to Plot 3.
Additional Details
- :
Features
- Air conditioning and air source heat pumps
- Close to local amenities & many local schools
- Double Glazed Tilt & Turn Sash Windows
- High specification new home on Ranelagh Road
- Landscaped rear garden
- New Build
- Off street parking for 2 cars
- Prime Residential Location between Reigate & Redhill
- Principal Bedroom With En-Suite
- Three bathrooms
- Three further bedrooms
Property on Map
Mortgage Calculator
- Principle and Interest



















