Description
This exciting new development by CLOVERLEAF DEVELOPMENTS* consists of just five beautifully appointed homes.
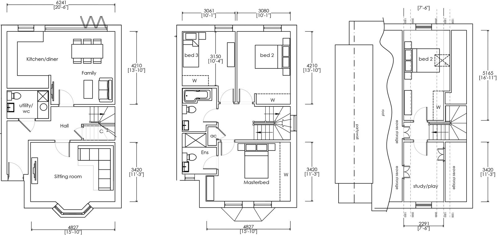
Plot 4 is situated at the top of Shrewsbury Road and benefits from a versatile open plan kitchen/dining room with integrated Bosch appliances, separate living room with double glazed sash bay windows and a cloakroom with utility. Upstairs there is a primary bedroom with an en-suite, three further bedrooms, a study with plenty of eaves storage, and a family bathroom. The landscaped garden is accessed via bifold doors from the kitchen/dining room.
Ranelagh Mews sits perfectly in the popular roads of Shrewsbury Road and Ranelagh Road, and blends beautifully with the surrounding period properties. The spacious and bright accommodation is arranged three floors with a private garden as well as the benefit of off road parking with the benefit of EV charger.
Shrewsbury Road is a pleasant road within easy reach of both Reigate and Redhill town centres. The location is largely residential however also boasts a popular deli and is walking distance to amenities including The Hatch pub as well as a post office and local shops, with many local schools also nearby. Redhill station is less than a 15 minute walk, and provides direct access to the London terminals in around 30 minutes. Reigate high street is just a 30 minute walk, with its many shops and restaurants.
*Cloverleaf Developments is the trading name of Hoama (Redhill) Ltd.
Additional Details
- :
Features
- Air Source Heat Pump
- Downstairs cloakroom / utility
- Four Bedrooms
- High specification new home on Shrewsbury Road
- New Build
- Off street parking
- Prime Residential Location between Reigate & Redhill
- Private rear garden accessed from the kitchen
- Ready to View Now
- Study
- Two Bathrooms
Property on Map
Mortgage Calculator
- Principle and Interest












