Description
The Workshop – Guide Price £700,000 – £725,000
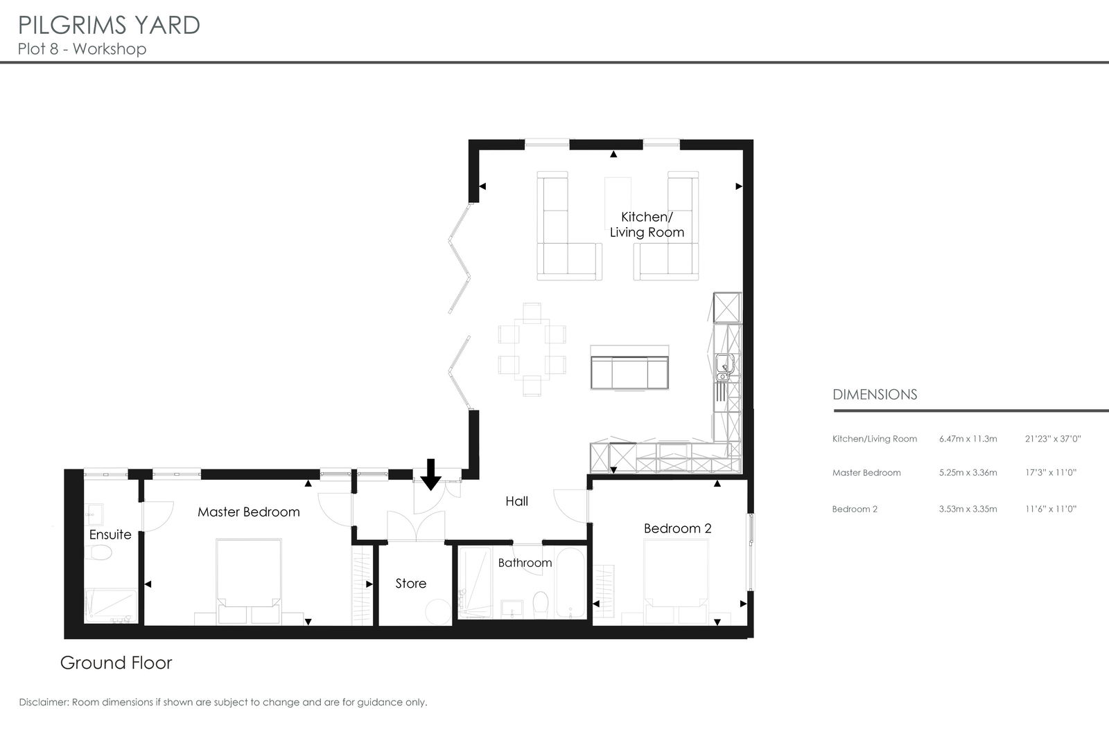
This spacious two bedroom, two bathroom semi-detached converted barn, is part of a unique collection of just nine homes set within a tranquil gated development surrounded by beautiful countryside with access to a private shared woodland walk and field with adjoining pond set within the grounds of an existing Manor House. Set in a gated development, this sympathetically converted and versatile home offers charm and character whilst giving a contemporary internal feel that is ideal for modern family living. The Workshop features beautiful vaulted ceilings to the Open Plan living area and Bedroom 1 as well as an enclosed private garden.
Please note – internal photos used this listing are from other properties at Pilgrims Yard and are for representation only whilst the build is in progress.
About Pilgrims Yard
Pilgrims Yard is a collection of just nine individual character homes newly created by Stateside Developments and surrounded by exceptional Greenbelt countryside. Each unique home has 2 allocated parking spaces.
Location
Pilgrims Yard can be found on Tilburstow Hill Road, which runs adjacent to the A22 runs between Godstone Village and Blindley Heath. Godstone is a very pretty village in the eastern part of Surrey near to the Kent and Sussex borders. The village features in the doomsday book and was once a stopping off point for royalty and the landed gentry who were travelling from London to the south coast. Close by, South Godstone offers access to Godstone Mainline Station which is on the Redhill to Tonbridge Line for trains to East Croydon and London Bridge.
Availability at Pilgrims Yard:
Coach House East – SOLD
Coach House West – SOLD
The Haybarns – Available (2/3 Bedroom Mews Houses)
The Cart Shed – SOLD
The Old Dairy – SOLD
The Farm Store – Pre Release (1 Bedroom Detached Converted Bungalow) COMING SOON
Additional Details
- :
Features
- 2 Private Parking Spaces and generous visitor parking
- Automated Entrance Gates
- Communal Cycle Store in converted Stable
- Fully Integrated range of Bosch Appliances including large induction hob
- Fully wired alarm and pre wiring for CCTV
- High Specification Contemporary Kitchen with Quartz stone work surfaces
- New Build
- Private Fenced Garden
- Ready For Occupation Early 2025
- Views across Greenbelt Countryside & access to a private woodland walk
- Wet Underfloor Heating and Air Source Heat Pump & High Energy Efficiency
Property on Map
Mortgage Calculator
- Principle and Interest














