Description
Guide Price – £425,000 – £450,000
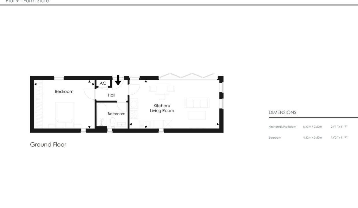
This unique contemporary detached 1 bedroom brand new bungalow, is part of an outstanding collection of just nine homes set within a tranquil gated development surrounded by beautiful Greenbelt countryside. There is access to a woodland walk and pond adjoining the grounds of an existing Manor House. The Farm Store blends the traditional and contemporary to create a charming home with delightful private gardens adjoining a pretty pond, fields and woodland. The Farm Store benefits from 2 private parking spaces and a private landscaped front and rear gardens. NB internal imagery is for representation purposes only and features pictures from completed homes at Pilgrims Yard that share a similar specification.
Residents at Pilgrims Yard also have licenced access to 4 acres private woodland and fields from which there are fine views.
About Pilgrims Yard
Pilgrims Yard is a collection of just nine individual character homes newly created by Stateside Developments and surrounded by exceptional Greenbelt countryside.
Location
Pilgrims Yard can be found on Tilburstow Hill Road, which runs adjacent to the A22 runs between Godstone Village and Blindley Heath. Godstone is a very pretty village in the eastern part of Surrey near to the Kent and Surrey borders. The village features in the Doomsday Book and was once a stopping off point for royalty and the landed gentry who were travelling from London to the south coast.
Close by, South Godstone offers access to Godstone Mainline Station which is on the Redhill to Tonbridge Line for trains to East Croydon and London Bridge.
Availability at Pilgrims Yard:
Coach House East – SOLD
Coach House West – SOLD
The Haybarns – PLOTS 3, 4 & 5 Are available (2 and 3 Bedroom Mews Houses)
The Cart Shed – SOLD
The Old Dairy – SOLD
The Workshop – Available (2 Bedroom Bungalow)
Additional Details
- :
Features
- 2 Allocated Parking Space, Electric Car Charging Point & Automated Entrance Gates
- Air Source Heat Pump & Wet Underfloor Heating
- Brand New Detached 1 Bedroom Bungalow
- Contemporary German sanitaryware by Duravit
- Fenced Gardens overlooking a pond (approx 2,800 sq.ft)
- Fully Integrated range of Bosch Appliances including large induction hobb
- High Specification Contemporary Kitchen with Quartzstone work surfaces
- Open Plan Living Dining Space
- Pre wiring for CCTV and fully wired alarm
- Ready For Occupation Summer 2025
Property on Map
Mortgage Calculator
- Principle and Interest








